关闭窗口
網上預訂
1
0
Modern conference hall at Maritim Hotel Amsterdam with glass front and gallery
会议和庆祝活动

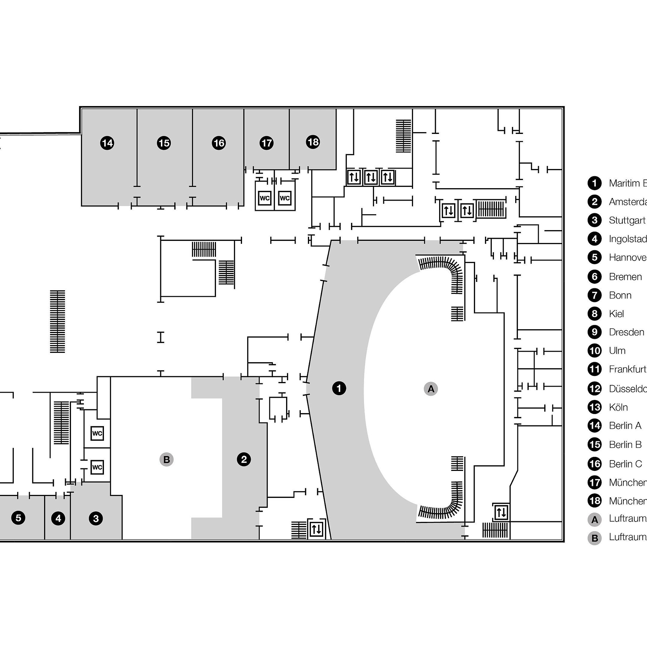
酒店拥有 25 个先进的大厅和房间,为阿姆斯特丹的会议和活动设立了新标准。所有厅室均采用自然采光、最新技术,并营造出令人难忘的活动氛围。

Rooms for your event

面积(平方米)
0 - 1733
Conference hall at Maritim Hotel Amsterdam with stage and modern lighting design
Maritim

The impressive "Maritim" hall is the largest event space within the Maritim Hotel Amsterdam, offering over 1,700 sqm of versatile space for various event formats. Depending on the seating arrangement, the hall can accommodate up to 2,200 guests. Whether it is a conference, exhibition, incentive event, concert, party convention, roadshow, kick-off, or large corporate celebration, the Maritim hall stands out for its versatility and is particularly well-suited for large-scale events. The room, like all other event spaces in the hotel, is bathed in natural light, creating a bright and inviting atmosphere.

The hall is also excellently equipped from a technical standpoint: it features floor-to-ceiling, double-glazed windows, allowing music events to be held without any restrictions. The hall includes a balcony, which is accessible both from within the hall and from the first floor. The permanently installed stage can be accessed by a vehicle. With a ceiling height of 9 metres, the hall also offers cloakrooms, a backstage area for performers and speakers, as well as six stage wings for diverse setup possibilities. Numerous rigging points and a freight lift enable the transportation of large equipment into the hall and onto the stage.

From this impressive event space, you can enjoy a beautiful view of the canal and the nearby boat dock. The hall is equipped with a high-end sound and public address system that can be customised for each event. A premium audio mixing console with signal channels, multicore connections for lighting and sound, a wireless digital conferencing system with up to 15 speaker points, built-in projection screens, and video and data projectors are available. Additionally, a professional lighting console is on hand to cater to any occasion.

The buffet restaurant “Loef” can be opened up to the conference foyer, providing direct access for conference guests on the ground floor (i.e., the Maritim and Amsterdam halls). This is particularly convenient for flying buffets and snacks or for gradually inviting guests to take their seats in the restaurant for a meal.

Maritim
面积(平方米)
1733
剧院式
2.142
课桌式
1162
高度
9,00 m
门的尺寸(宽/高)
2,19/2,66 m
宴会长桌
1370
宴会式
560
无线和有线网络连接
●/●
地板
Teppich/carpet
Elegantly set Berlin Hall at Maritim Hotel Amsterdam for events, banquets and celebrations
Berlin (A+B+C)

The "Berlin" hall offers a splendid view over the park. It is the third-largest conference room, accommodating up to 450 people, and can be divided into three separate rooms. This makes it ideal for medium to large gatherings. The conference room is not only filled with natural daylight but also provides the perfect setting for productive and relaxed networking in an inspiring atmosphere. Located on the first floor, it has direct access to the main foyer, with the option to create a separate foyer in front of the room.

Berlin (A+B+C)
面积(平方米)
384
剧院式
450
课桌式
ca. 248
董事桌
99
U-形
126
宴会式
230
高度
3,20 m
门的尺寸(宽/高)
2,40/2,72 m
无线和有线网络连接
●/●
地板
Teppich/carpet
Modern Munich Hall at Maritim Hotel Amsterdam with row seating and large screen
Munich (A+B)

The “München” (Munich) room offers a splendid view of the park, with ample natural light provided by floor-to-ceiling windows. It is the fourth-largest event space in the venue and is ideally suited for medium-sized gatherings and breakout sessions in smaller groups during a conference. The “München” (Munich) room accommodates up to 150 people, is directly connected to the main foyer on the second floor, and can be divided into two meeting rooms.

Munich (A+B)
面积(平方米)
143
剧院式
150
课桌式
84
宴会式
80
U-形
52
董事桌
50
高度
3,20 m
门的尺寸(宽/高)
1,20/2,83 m
无线和有线网络连接
●/●
地板
Teppich/carpet
Detail view of meeting room | Maritim Hotel Kaiserhof Heringsdorf
Cologne

The "Köln" (Cologne) hall, situated at a corner location, benefits from an abundance of natural light and offers a unique view over the park, which is situated directly in front of the hotel's entrance, thanks to its floor-to-ceiling windows. Accommodating up to 48 people, this conference room is an ideal space for presentations, discussions, voting, and organisation. Here, your ideas will truly come to life!

Cologne
面积(平方米)
90
剧院式
80
课桌式
48
U-形
28
宴会式
40
董事桌
28
高度
3,20 m
门的尺寸(宽/高)
1,20/2,72 m
无线和有线网络连接
●/●
地板
Teppich/carpet
Frankfurt

This well-lit meeting room, with a capacity for up to 78 attendees, is ideally suited for smaller meetings or breakout sessions as part of a larger event.

Frankfurt
面积(平方米)
78
剧院式
65
课桌式
40
宴会式
30
U-形
34
董事桌
34
高度
3,20 m
门的尺寸(宽/高)
1,80/2,72 m
无线和有线网络连接
●/●
地板
Teppich/carpet
A service staff member at the Maritim Berlin sets up a conference room, carrying a tray of glasses and placing water bottles.
Stuttgart

The "Stuttgart" room is located on the first floor of the hotel. This bright meeting space, situated at the end of the corridor, is ideally suited for private meetings or as a breakout room. The “Stuttgart” room also offers a pleasant view of the canal and the nearby boat dock.

Stuttgart
面积(平方米)
75
剧院式
60
课桌式
36
宴会式
30
U-形
24
董事桌
28
高度
3,20 m
门的尺寸(宽/高)
1,70/2,72 m
无线和有线网络连接
●/●
地板
Teppich/carpet
Laptop, pen and glass of water on table in the conference room at the Maritim Hotel Munich
Dusseldorf

The bright and modern conference room "Düsseldorf" (Dusseldorf) is ideally suited for small meetings or breakout sessions as part of a larger event.

Dusseldorf
面积(平方米)
71
剧院式
70
课桌式
40
宴会式
40
U-形
28
董事桌
28
高度
3,20 m
门的尺寸(宽/高)
1,80/2,72 m
无线和有线网络连接
●/●
地板
Teppich/carpet
Modern conference room at Maritim Hotel Amsterdam with row seating and large screen
Breakout room I

The slightly smaller breakout rooms are perfectly suited for meetings. This room offers a splendid view of the park with abundant natural daylight.

Breakout room I
面积(平方米)
67
剧院式
35
课桌式
36
董事桌
30
宴会式
20
A service staff member at the Maritim Berlin sets up a conference room, carrying a tray of glasses and placing water bottles.
Dresden

The "Dresden" hall is located on the first floor of the conference area. This bright meeting room can be hired for private gatherings or used as a breakout room.

Dresden
面积(平方米)
58
剧院式
60
课桌式
36
宴会式
30
U-形
24
董事桌
24
高度
3,20 m
门的尺寸(宽/高)
1,80/2,72 m
无线和有线网络连接
●/●
地板
Teppich/carpet
Detail view of meeting room | Maritim Hotel Kaiserhof Heringsdorf
Bremen

The "Bremen" hall is located on the first floor of the conference area. This bright meeting room, situated at the end of the corridor, provides an ideal space for private meetings or can be perfectly utilised as a breakout room during a larger event.

Bremen
面积(平方米)
58
剧院式
60
课桌式
36
宴会式
30
U-形
24
董事桌
24
高度
3,20 m
门的尺寸(宽/高)
1,80/2,72 m
无线和有线网络连接
●/●
地板
Teppich/carpet

Technology

We provide:

State-of-the-art technological infrastructures including hi-res data projectors, elaborate
lighting, professional sound systems and customisable network connections are either
standard in all halls and conference rooms, or can be made available upon request.
Depending on the conference rate booked, a comprehensive range of equipment
is already included, making booking many extras unnecessary.

Visit us at the Maritim Hotel Amsterdam, our central location is conveniently close to the main railway station and Schiphol Airport. Making our meeting rooms in Amsterdam, the capital of the Netherlands, the ideal venue for conferences and events of any type and size. Our professional team is at your service to assist with planning – contact us today to receive your tailored offer!