关闭窗口
網上預訂
1
0
立即预订
Hall Maritim in the Maritim Hotel Kiel, a member of staff lights candles on a festively laid table, sea view in the background.
会议和庆祝活动

在船上,Klabautermann 就是 “好精神”。只要他在船上,一切都会顺风顺水。我们的 MICE 团队将确保您的成功。

Rooms for your event

面积(平方米)
43 - 495
Maritim Hall in the Maritim Hotel Kiel, festively laid tables with candlelight, elegant ambience, staff preparing the event.
Maritim Hall

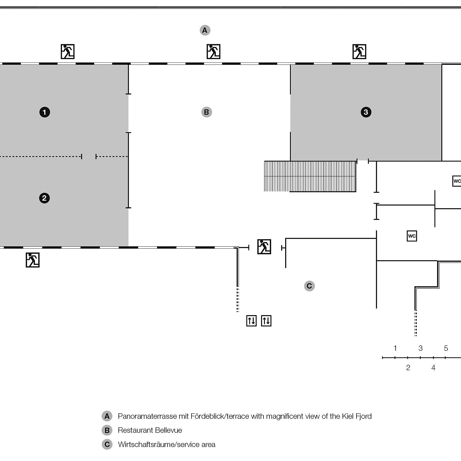
Ahoy there, event organisers! In the "Saal Maritim" (Maritim Hall) you can host seminars that are like a breath of fresh sea air and organise conventions that will stay in your guests’ memory just as salt from sea water lingers on your skin. Our function room offers a large stage, dance floor, adjoining foyer as well as a flexible room layout that can accommodate up to 450 people. This gives you the freedom to create the perfect ambience for stylish weddings, family celebrations, office parties, anniversaries, balls and just about any other kind of occasion when you’re looking for a top-class venue with a touch of luxury and opulence.

Maritim Hall
面积(平方米)
383
剧院式
450
U-形
80
宴会式
250
宴会长桌
300
董事桌
-
高度
4,00 m
门的尺寸(宽/高)
1,30/2,30 m
自然采光/亮度可调节
●/●
无线和有线网络连接
●/●
地板
Teppich/carpet
课桌式
225
Saal Kiel in the Maritim Hotel Kiel, large conference room with sea view, friendly staff set up the tables.
Kiel Hall

The "Saal Kiel" (Kiel Hall) is ideally suited to medium-sized conferences and offers a full range of technical equipment. The partitions can be removed to create a bigger space by incorporating the "Saal Maritim" (Maritim Hall). A panoramic window runs along the length of the room, providing sweeping views over Kiel Fjord. Curtains can be drawn to provide privacy during confidential meetings and discussions. The room is also equipped with state-of-the-art media technology.

Kiel Hall
面积(平方米)
112
剧院式
100
课桌式
55
U-形
35
宴会式
60
宴会长桌
60
董事桌
32
高度
2,90 m
门的尺寸(宽/高)
1,80/2,30 m
自然采光/亮度可调节
●/●
无线和有线网络连接
●/●
地板
Teppich/carpet
The Salon Copenhagen in the Maritim Hotel Kiel, an elegant conference room with chandeliers, laid tables and large windows.
Copenhagen Room

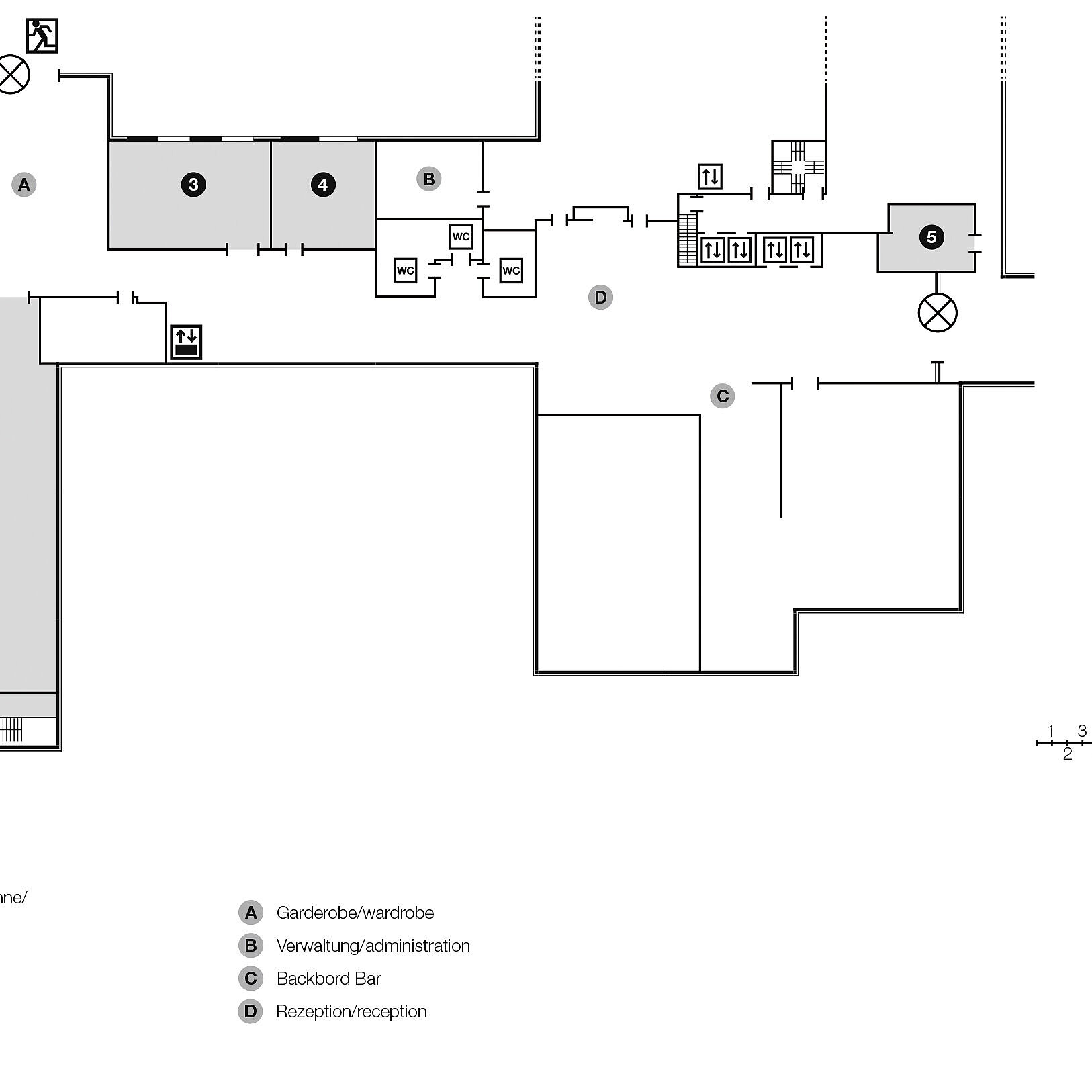
The Maritim Hotel Bellevue Kiel is the ideal event location if you’re looking to set a new strategic course and open up new horizons. The "Salon Kopenhagen" (Copenhagen Room) is a modern, bright, air-conditioned room with large windows and spectacular views over Kiel Fjord. It can also be combined with the adjoining "Salon Helsinki "(Helsinki Room). The latest conference technology and connections for laptops and Internet as well as Wi-Fi are, of course, provided as standard.

Copenhagen Room
面积(平方米)
84
剧院式
60
课桌式
40
U-形
35
宴会长桌
40
董事桌
34
高度
2,90 m
门的尺寸(宽/高)
3,00/2,30 m
自然采光/亮度可调节
●/●
无线和有线网络连接
●/●
地板
Teppich/carpet
Salon Helsinki in the Maritim Hotel Kiel, conference room with rows of chairs, chandeliers and large windows with a view of the greenery.
Helsinki Room

The 81 sqm "Helsinki " conference and meeting room at basement level caters for max. 60 people and is equipped with the latest conference technology. The room can be completely darkened and is soundproofed. With this room you have the option of incorporating the "Salon Kopenhagen" (Copenhagen Room) and configuring the space to suit your specific requirements. Whether you’re hosting an anniversary celebration, promotional activities or any other kind of event, we will be happy to lend our experience and creativity to help you plan it to perfection. Our professional, experienced service team is on hand to provide you with an extensive range of delicious delicacies and refreshments – from finger food to something more substantial.

Helsinki Room
面积(平方米)
81
剧院式
60
课桌式
40
U-形
30
宴会长桌
40
董事桌
34
高度
2,90 m
门的尺寸(宽/高)
1,80/2,30 m
自然采光/亮度可调节
●/●
无线和有线网络连接
●/●
地板
Teppich/carpet
The Salon Lübeck in the Maritim Hotel Kiel, a modern conference room with U-shaped seating, large windows and chandeliers.
Lübeck Room

The "Salon Lübeck" (Lübeck Room) is the perfect environment for focused work or creative thinking during a meeting, conference or seminar. The 69 sqm room has a ceiling height of 2.9 metres and provides a space where up to 50 people can focus on their work without being disturbed. The floor-to-ceiling windows can also be completely darkened if required, and the dynamic lighting can be adjusted to help you work as effectively as possible. The room is furnished to a very high standard, combining practicality and timeless elegance. The air conditioning, ventilation system and heating in the room can be controlled by the facilitator.

Lübeck Room
面积(平方米)
69
剧院式
50
课桌式
30
U-形
28
董事桌
30
高度
2,90 m
门的尺寸(宽/高)
1,70/1,90 m
自然采光/亮度可调节
●/●
无线和有线网络连接
●/●
地板
Teppich/carpet
Salon Oslo in the Maritim Hotel Kiel, long festively laid table with sea view, chandelier, staff arranging the room.
Oslo Room

Are you looking for a suitable venue in Kiel for conferences, seminars and presentations? Look no further than the "Salon Oslo" (Oslo Room). This light-flooded function and conference room is equipped with state-of-the-art conference equipment and floor-to-ceiling windows that can be darkened if required. The large panoramic terrace overlooking the fjord is a great place to relax and has ample space for a creative interlude. With its quiet location, you and up to 50 participants can use this space to brainstorm without being disturbed. Individuality is extremely important to us, so we leave plenty of scope for you to personalise your event. We will be happy to cater for whatever requirements you may have.

Oslo Room
面积(平方米)
69
剧院式
50
课桌式
30
U-形
30
宴会长桌
35
董事桌
30
高度
2,90 m
门的尺寸(宽/高)
1,30/2,10 m
自然采光/亮度可调节
●/●
无线和有线网络连接
●/●
地板
Teppich/carpet
Salon Flensburg in the Maritim Hotel Kiel, conference room with a set table, large windows and stylish lighting.
Flensburg Room

The "Salon Flensburg" (Flensburg Room) provides an environment where you are free to express yourself and can get things done. Our high-quality technical equipment, including screens and projectors, helps you to achieve excellent results. This function room is ideal for hosting training courses, conferences or presentations, or simply as a break away from routine to encourage the development of new ideas. You can arrange the seating in the "Salon Flensburg" (Flensburg Room) to suit your specific requirements.

Flensburg Room
面积(平方米)
43
剧院式
25
课桌式
18
U-形
15
董事桌
14
高度
2,90 m
门的尺寸(宽/高)
0,80/1,90 m
自然采光/亮度可调节
●/●
无线和有线网络连接
●/●
地板
Teppich/carpet

Technology

We provide:

Media technology in the Maritim Hall

  • Video projector
  • Ppin boards
  • PA system
  • Lectern
  • Screen
  • Spotlight
  • Flip-charts

Media technology in other rooms

  • Video projector
  • Pin boards
  • Screen
  • Lectern
  • Flip-charts
  • Spotlight

Additional media technology is available upon request.