关闭窗口
網上預訂
1
0
立即预订
Meeting room with large windows, tables and water bottles at the Maritim Hotel Munich
会议和庆祝活动

在慕尼黑举办会议、研讨会和大会的理想场所: 位于市中心的九间多功能活动室是您举办各种活动的理想场所。

Rooms for your event

面积(平方米)
26 - 580
Spacious conference hall with chandeliers and professional setup at the Maritim Hotel Munich
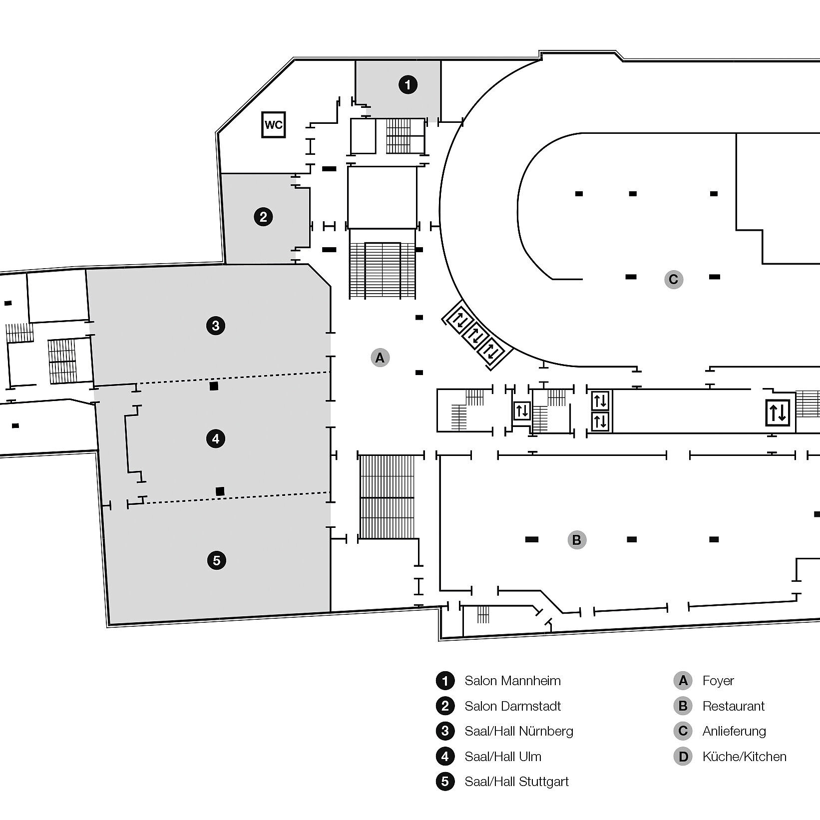
Maritim Hall

With a 580 sqm event space, the "Saal Maritim" (Maritim Hall) is the perfect setting for a successful event. The room can cater for groups of all sizes thanks to the option of dividing it into three sections (two measuring 380 sqm and one measuring 200 sqm).

This flexibility makes it easy to find the ideal solution for a wide range of requirements.
State-of-the-art technical equipment can also be provided. The Maritim Hotel München also works with an outside technology firm so that any special requests you may have can be dealt with quickly and easily.

Maritim Hall
面积(平方米)
580
剧院式
505
课桌式
320
宴会式
380
高度
3,20 m
门的尺寸(宽/高)
2,00/2,40 m
自然采光/亮度可调节
-/•
无线和有线网络连接
•/•
地板
Teppich/carpet
Spacious conference hall with chandeliers and professional setup at the Maritim Hotel Munich
Stuttgart Hall & Nuremberg Hall

From relaxed meetings to major conferences and unforgettable weddings – the "Saal Stuttgart" (Stuttgart Hall) and "Saal Nürnberg" (Nuremberg Hall) give you the freedom to let your imagination run free. Both rooms have phone and Internet connections (up to 6 Mbps) as well as wireless Internet access (Wi-Fi from T-COM).

Stuttgart Hall & Nuremberg Hall
面积(平方米)
200
剧院式
170
课桌式
100
U-形
50
宴会式
150
董事桌
40
高度
3,20 m
门的尺寸(宽/高)
2,00/2,40 m
自然采光/亮度可调节
-/•
地板
Teppich/carpet
无线和有线网络连接
•/•
Conference hall with row seating and chandeliers at the Maritim Hotel Munich
Ulm Hall

The fully accessible "Saal Ulm" (Ulm Hall) with state-of-the-art conference and multimedia equipment is the ideal venue for hosting seminars, conventions, training courses, meetings or conferences. Do you need extra space for an accompanying exhibition in addition to your conference? No problem – you can simply add the adjoining "Saal Stuttgart" (Stuttgart Hall) or "Saal Nürnberg" (Nuremberg Hall) to your booking. 

Ulm Hall
面积(平方米)
180
剧院式
120
课桌式
80
U-形
40
宴会式
100
董事桌
40
高度
3,20 m
门的尺寸(宽/高)
2,00/2,40 m
自然采光/亮度可调节
-/•
无线和有线网络连接
•/•
地板
Teppich/carpet
Meeting room with large windows, tables and water bottles at the Maritim Hotel Munich
Munich Hall

The 120 sqm "Saal München" (Munich Hall) is located on the ground floor of the Maritim Hotel München and provides an elegant setting for meetings, corporate events and private functions. Boasting natural light, contemporary design and high-quality technical equipment, this is the ideal place to host a successful and productive event.  

The adjoining beer garden is ideal for hosting receptions or taking breaks during the day.

Munich Hall
面积(平方米)
120
剧院式
50
课桌式
40
U-形
20
宴会式
70
董事桌
20
高度
2,95 m
门的尺寸(宽/高)
2,10/2,40 m
自然采光/亮度可调节
•/•
无线和有线网络连接
•/•
地板
Teppich/carpet
Maritim-branded pen on laptop in the meeting room of the Maritim Hotel Munich
Würzburg Room

The newly renovated "Salon Würzburg" (Würzburg Room) enjoys a quiet location on the second basement level of the hotel and is the perfect venue for events with up to 40 people, including seminars, meetings, exhibitions and roadshows. Professional conference equipment, pleasant mood lighting with light panels as well as individual support before and during your event guarantee that it will be a complete success.

Würzburg Room
面积(平方米)
100
剧院式
40
课桌式
35
U-形
25
宴会式
50
董事桌
20
高度
2,30 m
门的尺寸(宽/高)
1,00/2,10 m
自然采光/亮度可调节
-/•
无线和有线网络连接
•/•
地板
Teppich/carpet
Elegantly set room for banquets and celebrations with glass roof at Maritim Hotel Munich
Conservatory

Are you looking for a unique location for your business event in Munich? Look no further than the "Wintergarten" (Conservatory) at the Maritim Hotel München. We can help you organise a successful breakfast meeting, conference, presentation, company celebration or small get-together.

This 72 sqm meeting room is bound to impress customers and colleagues alike owing to its unconventional shape, glass façade and variety of possible uses.

Conservatory
面积(平方米)
72
剧院式
50
课桌式
24
U-形
16
宴会式
60
董事桌
20
高度
4,20 m
门的尺寸(宽/高)
2,80/2,15 m
自然采光/亮度可调节
•/•
无线和有线网络连接
•/•
地板
Teppich/carpet
Bright conference room with U-shape seating and chandelier at the Maritim Hotel Munich
Darmstadt Room

The "Salon Darmstadt" (Darmstadt Room) with capacity for up to 28 people can be tailored to your specific needs and offers a range of flexible seating options for your event. The room’s features include professional sound and lighting control systems, a powerful projector, motorised screen as well as state-of-the-art phone and Internet technology. Networking between conference rooms can also be provided.

Darmstadt Room
面积(平方米)
56
剧院式
28
课桌式
21
U-形
21
宴会式
30
董事桌
12
高度
2,50 m
门的尺寸(宽/高)
0,95/1,95 m
自然采光/亮度可调节
-/•
无线和有线网络连接
•/•
地板
Teppich/carpet
Small meeting room with coffee, biscuits and flowers at the Maritim Hotel Munich
Mannheim Room

The 37 sqm "Salon Mannheim" (Mannheim Room) is the perfect place for conducting smaller meetings, interviews and discussions, or it can even be used as an office. It provides an ideal environment for developing and implementing new business ideas. Elegantly decorated with chandeliers, wood panelling and corner mirrors, this charming room will lend your event the kind of atmosphere that you won’t find anywhere else.

Mannheim Room
面积(平方米)
37
剧院式
15
U-形
-
课桌式
-
董事桌
12
高度
2,50 m
门的尺寸(宽/高)
0,95/1,95 m
自然采光/亮度可调节
-/•
无线和有线网络连接
•/•
地板
Teppich/carpet
Meeting room with wooden table, chairs and presentation setup at the Maritim Hotel Munich
Conference suite

Are you looking for a conference room for a small, private meeting? Our 26 sqm conference suite is equipped with every modern convenience in a comfortable living area, providing an elegant location for discreet contract negotiations, interviews or small meetings for up to 10 people.

Conference suite
面积(平方米)
26
董事桌
10
高度
2,50 m
门的尺寸(宽/高)
0,95/1,95 m
自然采光/亮度可调节
•/•
无线和有线网络连接
•/•
地板
Teppich/carpet

Technology

All of our conference rooms offer the following facilities
  • High-end beamer
  • Pin boards
  • Electrically operated screens 5 x 3.1 m
  • Lectern
  • Public address system through professional mobile loudspeakers
  • Spotlights
  • Flipcharts