关闭窗口
網上預訂
1
0
Modern conference room with large table, lake view and technology at Maritim Hotel Travemünde
会议和庆祝活动

这里有 12 间多功能厅和一个贴心的活动团队,您的会议或庆祝活动将是一次难忘的波罗的海体验。

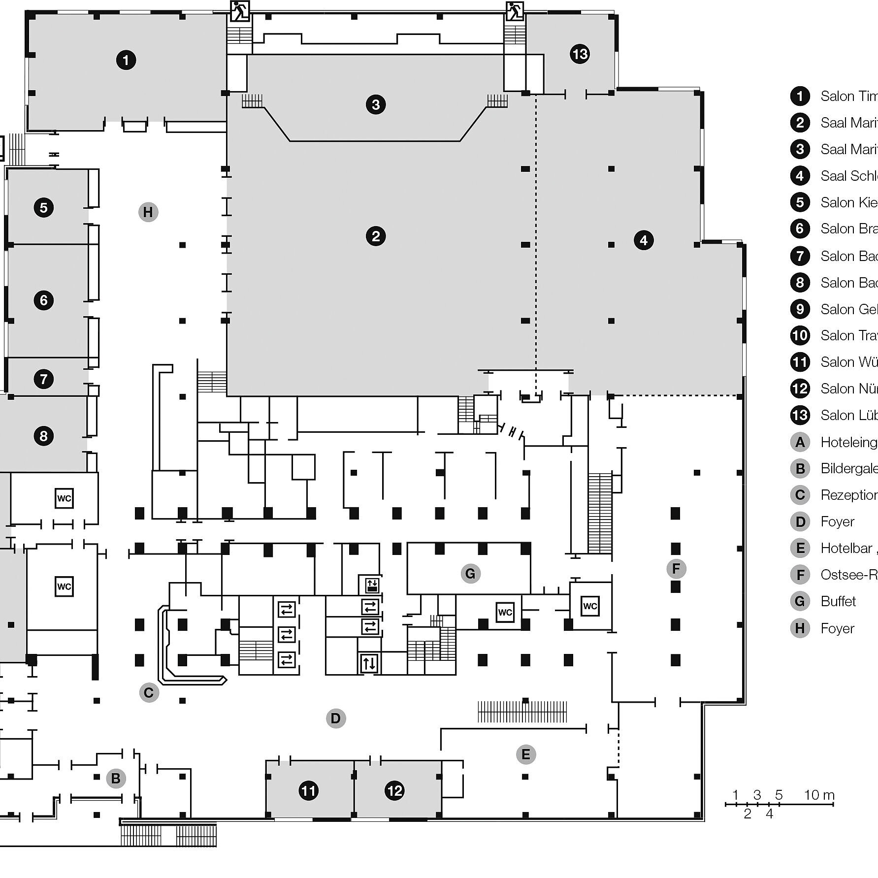
Rooms for your event

面积(平方米)
29 - 1760
Spacious hall with stage, screen and row seating at Maritim Hotel Travemünde
Maritim Hall

Do you want to present a new corporate strategy, launch a coaching initiative for your marketing and sales staff or welcome new executives to the company? Do you want to present the results of the latest developments in research or innovations or inform attendees about a special topic? Look no further than the "Saal Maritim" (Maritim Hall). With 780 sqm of conference space as well as a further 380 sqm on the gallery, it provides the perfect setting for every imaginable event. In addition to the permanent stage, we also offer you the finest conference equipment. We help you from the beginning to the end so that your meeting or convention is a success for your company.

Maritim Hall
地板
Teppich/carpet
无线和有线网络连接
•/•
自然采光/亮度可调节
-/-
门的尺寸(宽/高)
1,84/2,28 m
高度
6,22 m
董事桌
100
宴会长桌
500
宴会式
500
U-形
120
课桌式
500
剧院式
650
面积(平方米)
780
Salon Dublin classroom style | Maritim Hotel Berlin
Schleswig-Holstein Hall

The modern event room "Saal Schleswig-Holstein" (Schleswig-Holstein Hall) with a view of the sea creates the ideal setting for your individual event. Whether conferences, seminars, exhibitions, private parties, large evening events, incentives or product presentations, the state-of-the-art technical equipment in this room caters perfectly to all your communication and information needs. The capacity of the room can be particularly well utilised with long tables, and a fixed dance floor literally brings "swing" into your evening event. The hall is directly connected to the Maritim hall and the restaurant and separated from them by mobile walls. Apart from the atmosphere, the details in organisation and coordination also matter. With our flexibility and experience, we make sure that your needs and wants are met, and your event is a complete success.

Schleswig-Holstein Hall
地板
Teppich/carpet
无线和有线网络连接
•/•
自然采光/亮度可调节
•/•
门的尺寸(宽/高)
1,60/1,93 m
高度
3,06 m
董事桌
100
宴会长桌
380
宴会式
380
U-形
60
课桌式
150
剧院式
300
面积(平方米)
600
U-shaped meeting room with carpet, large windows and garden view at Maritim Hotel Travemünde
Timmendorf Room

Whether it's a conference, seminar, incentive, small concert, exhibition, PR & marketing event, Christmas party, wedding or summer party - the "Salon Timmendorf" (Timmendorf Room) on the ground floor offers 210 sqm of space for up to 200 people and guarantees you and your guests an incomparable experience with its extraordinary furnishings. In addition, the event room is equipped with state-of-the-art conference technology and timelessly elegant furniture. You look out over the landscaped park and also have direct access to the foyer with its central coffee break. The Ostseerestaurant also takes care of your physical well-being, spoiling you and your guests with top-class gastronomy. The event team will be happy to advise and support you in the planning and implementation of an unforgettable event. In addition to a permanently installed beamer with screen, we are happy to provide you with further conference technology. Barrier-free access to the room is possible.

Timmendorf Room
地板
Teppich/carpet
无线和有线网络连接
•/•
自然采光/亮度可调节
•/•
门的尺寸(宽/高)
1,86/2,36 m
高度
3,16 m
董事桌
40
宴会长桌
100
宴会式
100
U-形
52
课桌式
120
剧院式
200
面积(平方米)
210
U-shaped meeting room with elegant chandeliers and large windows at Maritim Hotel Travemünde
Bad Salzuflen Room

The "Salon Bad Salzuflen" (Bad Salzuflen Room) on the ground floor of the hotel offers space for up to 120 people and enchants with a wonderful atmosphere and a clear design and architectural concept. The function room is ideal for seminars, conferences, congresses, PR & marketing events, company events, private celebrations, meetings and exhibitions. It is directly connected to the conference foyer. Here you will find state-of-the-art conference technology such as a fixed beamer and screen. Barrier-free access is possible.

Bad Salzuflen Room
地板
Teppich/carpet
无线和有线网络连接
•/•
自然采光/亮度可调节
•/•
门的尺寸(宽/高)
1,84/2,32 m
高度
3,13 m
董事桌
30
宴会长桌
60
宴会式
60
U-形
32
课桌式
64
剧院式
120
面积(平方米)
104
Stylish room with U-shape seating and chandeliers at Maritim Hotel Travemünde
Braunlage Room

The "Salon Braunlage" (Braunlage Room) offers the perfect setting for corporate events of various kinds, seminars and conferences as well as a boardroom or group room. With its direct access to the conference foyer with the central coffee break, it is possible to celebrate here with a very special and maritime flair. Whether private or business event - for up to 100 people, the function room is suitable for every occasion. Like all conference rooms in the Maritim Strandhotel Travemünde, the room is equipped with modern event equipment including a fixed projector and screen. Barrier-free access to the conference room is available.

Braunlage Room
地板
Teppich/carpet
无线和有线网络连接
•/•
自然采光/亮度可调节
•/•
门的尺寸(宽/高)
1,70/2,34 m
高度
3,16 m
董事桌
25
宴会长桌
40
宴会式
40
U-形
28
课桌式
60
剧院式
100
面积(平方米)
94
Seminar room with row seating, carpet floor and large windows at Maritim Hotel Travemünde
Travemuende Room

Are you looking for a quiet location in Travemuende? Then you have come to the right place. The "Salon Travemünde" (Travemuende Room) is located in the conference area of the Maritim Strandhotel Travemünde. It has 74 sqm and provides a beautiful setting for medium-sized conferences for up to 80 people. The room can also be used as a boardroom and group room. A permanently installed beamer and a screen are available. Barrier-free access to the room is possible.

Travemuende Room
地板
Teppich/carpet
无线和有线网络连接
•/•
自然采光/亮度可调节
•/•
门的尺寸(宽/高)
0,91/1,93 m
高度
3,16 m
董事桌
25
宴会长桌
20
宴会式
30
U-形
22
课桌式
30
剧院式
80
面积(平方米)
74
Detail view of meeting room | Maritim Hotel Kaiserhof Heringsdorf
Lübeck Room

Located on the upper floor and next to the restaurant of the Maritim Strandhotel Travemünde, the "Salon Lübeck" (Luebeck Room) is at your disposal. The location with a view of the wide sandy beach and a fantastic view of the Baltic Sea offers additional possibilities to diversify your event. The sea and the fresh air will release new energy during team-building trainings, sports activities or relaxing walks. Of course, we will also accompany you through your event with culinary delights. The salon is well suited as a boardroom and group room and has no fixed conference technology. It is only rented in conjunction with the "Saal Maritim" (Maritim Hall) and "Saal Schleswig-Holstein" (Schleswig-Holstein Hall), as access is only possible through one of these rooms.

Lübeck Room
地板
Teppich/carpet
无线和有线网络连接
•/•
自然采光/亮度可调节
•/•
门的尺寸(宽/高)
1,75/1,91 m
U-形
20
课桌式
30
剧院式
40
面积(平方米)
55
Meeting room with U-shaped seating and friendly Maritim staff member at Maritim Hotel Travemünde
Kiel Room

Away from hectic city noise, breathe in the clear sea air and concentrate on the essentials. The "Salon Kiel" (Kiel Room) is the perfect place for board meetings, seminars, small conferences or as a group room. Located close to the foyer, this salon is well suited for exhibitions. The overall concept of the meeting area, the personal service culture and the unique atmosphere of the different meeting facilities complement each other perfectly. A permanently installed beamer and screen are available. Barrier-free access is also possible.

Kiel Room
地板
Teppich/carpet
无线和有线网络连接
•/•
自然采光/亮度可调节
•/•
门的尺寸(宽/高)
1,70/2,31 m
高度
3,17 m
董事桌
20
宴会长桌
12
宴会式
20
U-形
16
课桌式
30
剧院式
40
面积(平方米)
53
Bright meeting room at Maritim Hotel Travemünde with screen and window view
Wuerzburg Room

The modern, light-flooded "Salon Würzburg" (Wuerzburg Room) offers plenty of space for privacy on 42 sqm, while the classic interior lends an elegant atmosphere to every event. The "Salon Würzburg" impresses with its high-speed internet connection and professional conference technology. Here you will find a suitable setting for meetings and seminars for up to 12 people in a comfortable, soothing and homely atmosphere. This salon is also well suited as a boardroom and group room. With fixed seating, the salon is suitable as a block for up to 12 people. Here you will find peace and quiet and the space to concentrate and work creatively. You can also use the fixed flat-screen TV with the latest conference technology for online meetings. Permanently installed power sockets are located at every seat. From this salon you have a side sea view and a view of the Trave estuary. The salon is close to the hotel lobby and the hotel bar.

Wuerzburg Room
地板
Teppich/carpet
无线和有线网络连接
•/•
自然采光/亮度可调节
•/•
门的尺寸(宽/高)
0,80/2,10 m
高度
3,07 m
董事桌
12
面积(平方米)
42
Modern conference room at Maritim Hotel Travemünde with sea view
Nuremberg Room

Workshops, courses, talks, small exhibitions, seminars, conferences, family celebrations or dinner events - the possibilities for group events in the "Salon Nürnberg"(Nuremberg Room) are manifold. The salon is located on the ground floor, has 42 sqm, is flooded with light with a view of the sea and the Trave estuary and is close to the hotel lobby and the hotel bar. The conference equipment is not permanently installed, but we are happy to provide you with conference equipment according to your wishes. Barrier-free access to the salon is possible. 

Nuremberg Room
地板
Teppich/carpet
无线和有线网络连接
•/•
自然采光/亮度可调节
•/•
门的尺寸(宽/高)
0,80/2,10 m
高度
3,07 m
董事桌
14
宴会长桌
10
宴会式
10
U-形
14
课桌式
16
剧院式
30
面积(平方米)
42

Technology

All of our conference rooms offer the following facilities
  • Beamers
  • Podiums
  • Projection screens
  • Microphone systems
  • PA systems
  • WLAN 
  • Cork boards
  • Sockets for ISDN devices
  • Flip charts